Réalisation
2026
Relevé d'un centre d'affaires
COLMAR/ HAUT-RHIN




Relevé d'une école élémentaire
ECKBOLSHEIM/ BAS-RHIN




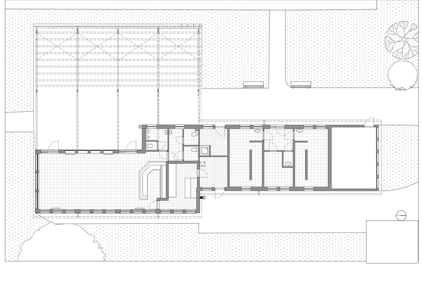
Relevé d'un corps de ferme
MUHLBACH-SUR-BRUCHE/ BAS-RHIN






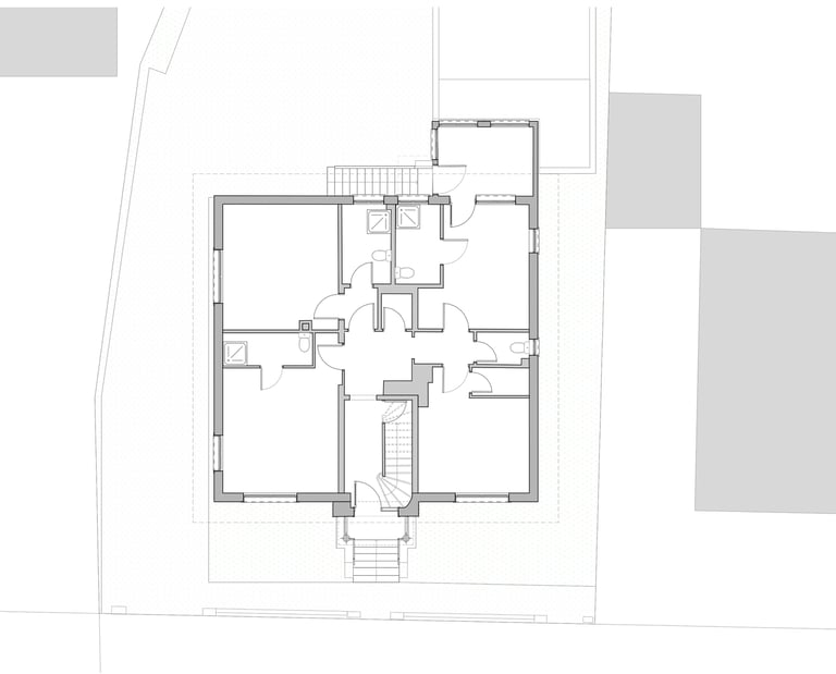
Relevé d'une maison
DINGSHEIM/ BAS-RHIN




Relevé d'un château
SAVIGNY-LE-VIEUX/ SAÔNE-ET-LOIRE




Relevé de deux locaux commerciaux
BRUMATH/ BAS-RHIN




2025
Relevé d'un ensemble immobilier
STRASBOURG/ BAS-RHIN




Relevé d'un corps de ferme et de son habitation
STURZELBRONN / MOSELLE




Relevé d'une école
ECKWERSHEIM / BAS-RHIN




Relevé d'un bâtiment de bureaux
HOCHFELDEN / BAS-RHIN




Relevé d'un clubhouse
PFULGRIESHEIM / BAS-RHIN




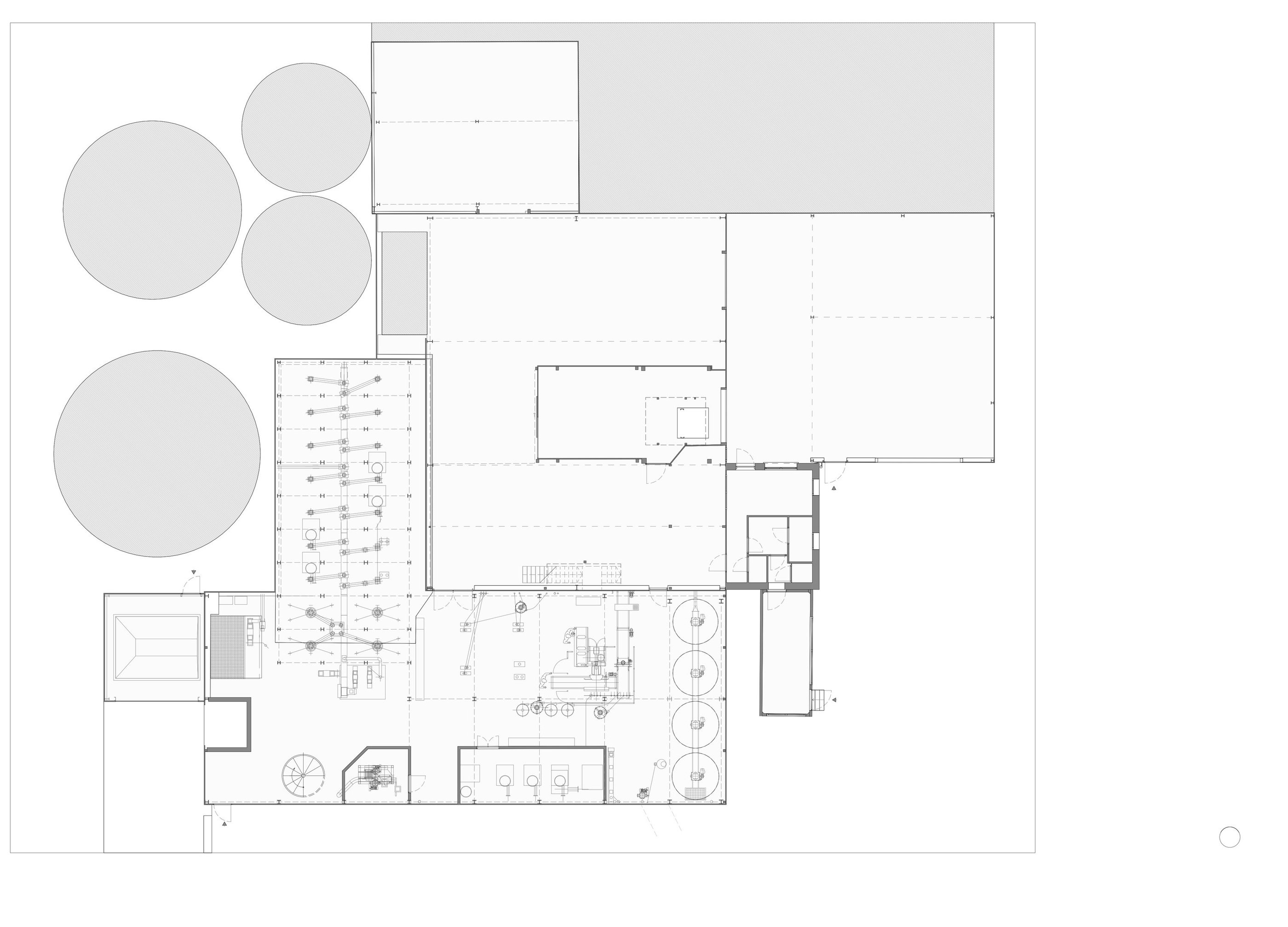
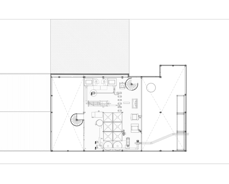
Relevé d'un moulin industriel
SAINT-JEAN-SUR-VEYLE / AIN




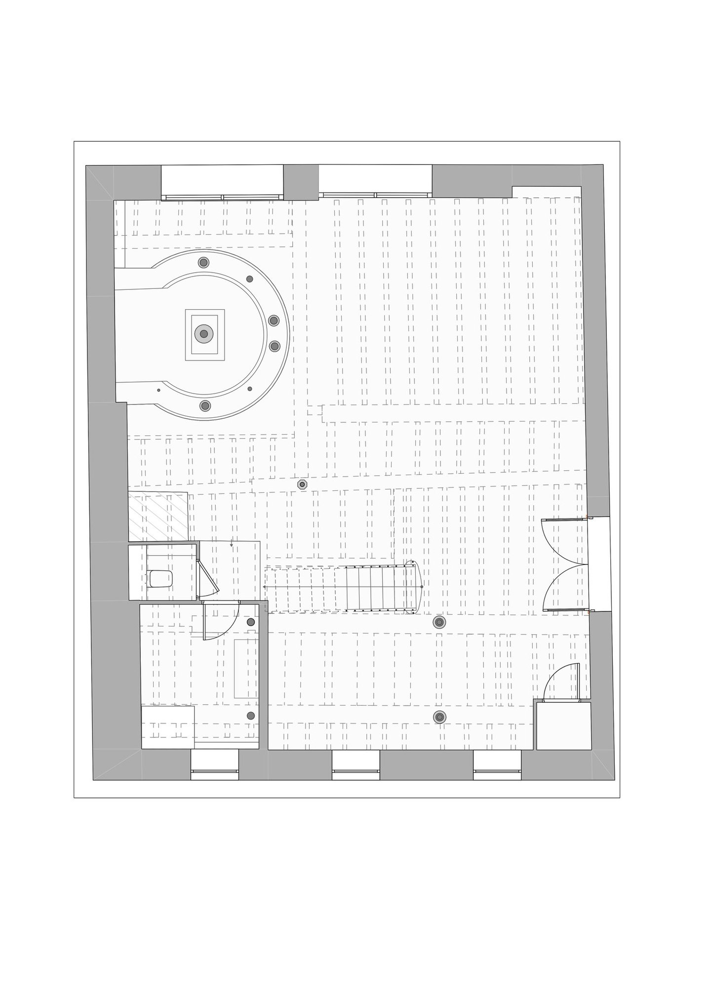
Relevé d'un ensemble de logements
SAINT-JEAN-SUR-VEYLE / AIN




Relevé d'un moulin industriel
SAINT-JEAN-SUR-VEYLE / AIN




Relevé d'un ancien moulin industriel
SAINT-JEAN-SUR-VEYLE / AIN




Relevé d'un moulin industriel
SAINT-JEAN-SUR-VEYLE / AIN




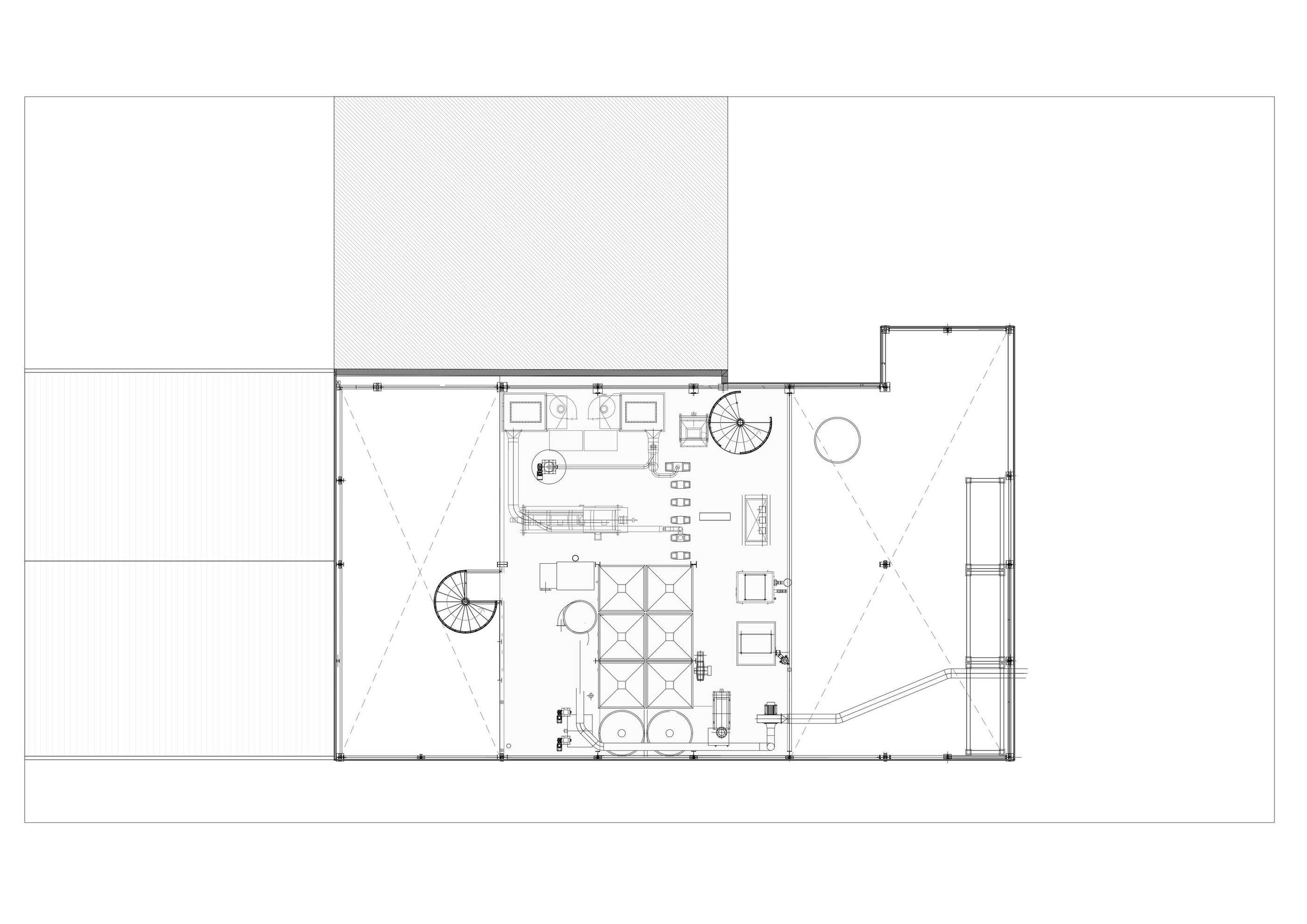
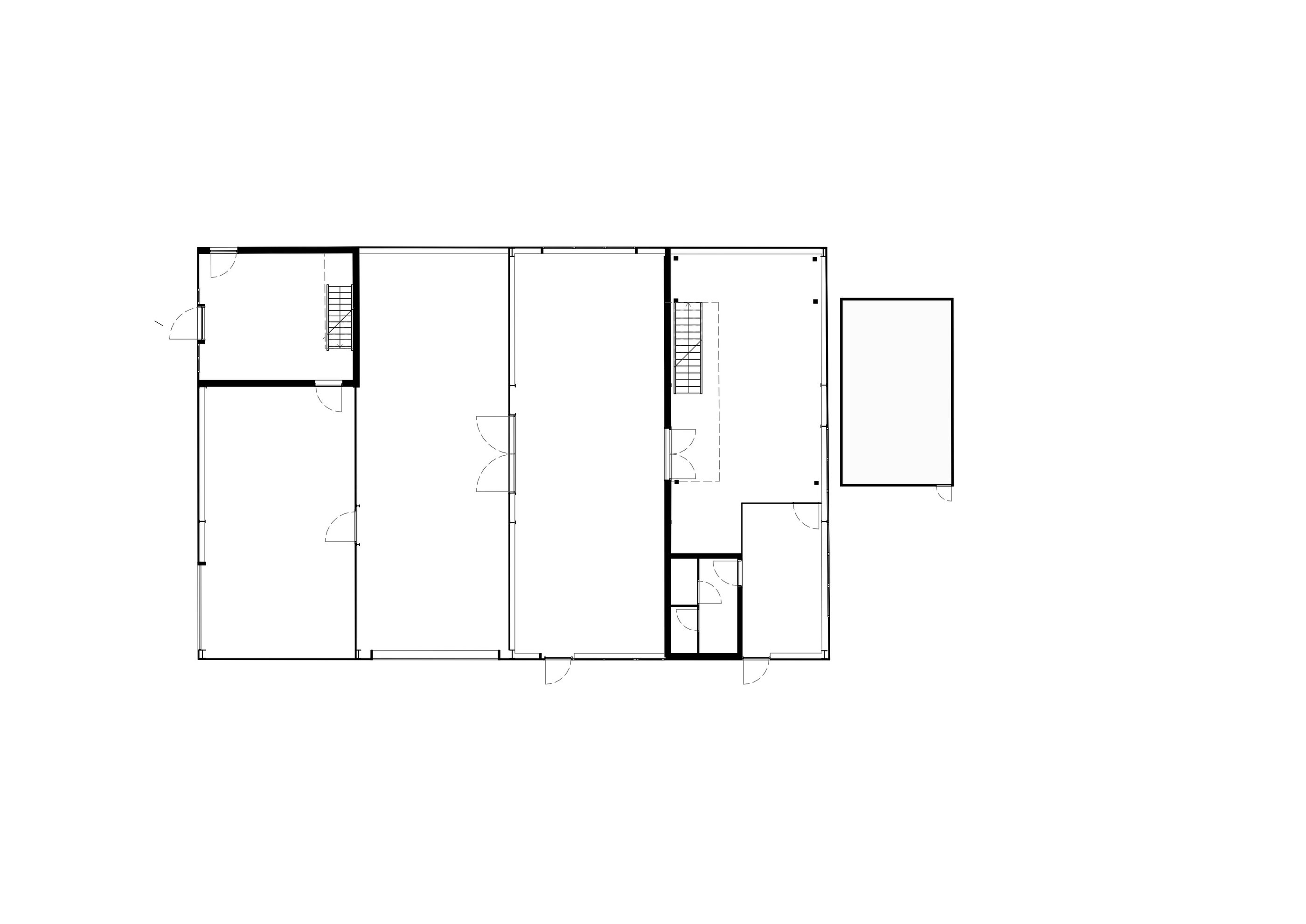
Relevé d'un atelier de maintenance
SAINT-JEAN-SUR-VEYLE / AIN




Relevé d'une maison ardéchoise
EMPURANY / ARDECHE




Relevé d'un moulin industriel
SAINT-JEAN-SUR-VEYLE / AIN




Relevé d'une église
ROHR / BAS-RHIN






2024
Relevé d'un ancien bâtiment public
SELTZ / BAS-RHIN




Relevé d'un restaurant
STRASBOURG / BAS-RHIN






Relevé d'un appartement
STRASBOURG / BAS-RHIN




Relevé d'un immeuble
STRASBOURG / BAS-RHIN




Relevé d'un corps de ferme
MONSWILLER / BAS-RHIN




Relevé d'un corps de ferme
HABSHEIM / HAUT-RHIN




Relevé d'un établissement de l'association Foyer Notre Dame
STRASBOURG / BAS-RHIN




